Lahaska Master Bath Remodel
DESIGN CONCEPT
This master bathroom renovation blends natural textures with refined elegance, creating a spa-like retreat that is both visually stunning and highly functional. Warm white oak reeded cabinetry serves as a striking focal point and provides abundant storage, while a soft green floral wallpaper infuses the room with a sense of nature and tranquility. The spacious walk-in shower is enclosed with glass and features polished white porcelain walls, a decorative marble mosaic niche, and a luxurious ceiling-mounted rain showerhead. Brushed gold plumbing fixtures, paired with a polished quartz countertop, offer a perfect balance of warmth and sophistication, ensuring the space feels inviting and timeless.
We previously worked with this client on their Pool House Remodel – click here to see that project.
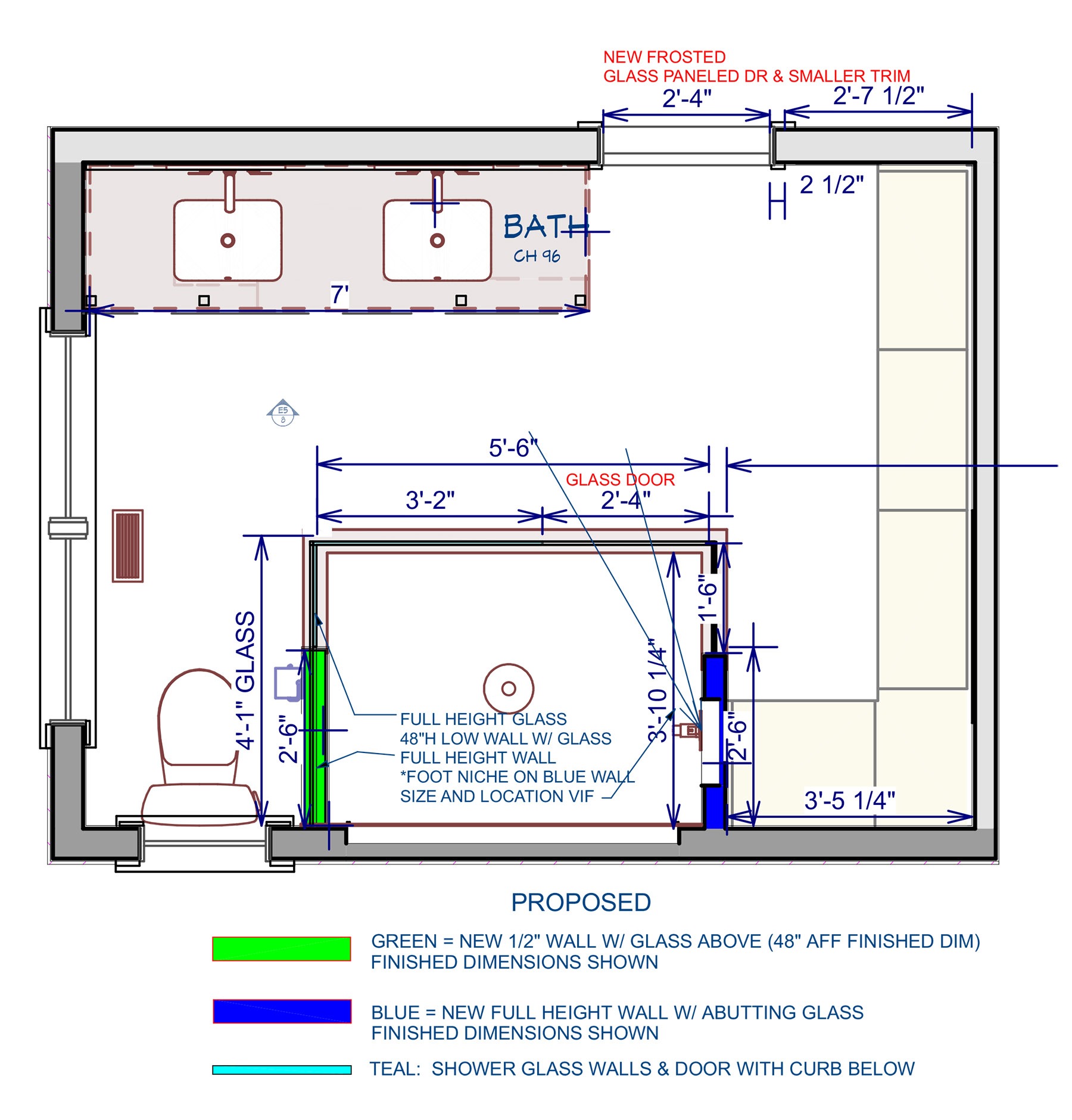
NEW FLOOR PLAN
The redesigned floor plan opens up the room by incorporating a glass-enclosed shower with a 48-inch-high knee wall topped in quartz, allowing natural light to flow freely and improving the overall sightlines. A custom full-height storage cabinet was added along the entry wall for maximum organization, while the vanity wall now accommodates an double-sink vanity. The toilet remains near the window to maintain plumbing efficiency, and the addition of heated flooring, updated lighting, and repositioned electrical outlets and switches enhances everyday convenience and comfort.
CABINETS
The custom cabinetry features full-height reeded panels in white oak with a clear finish. Designed with a push-to-open mechanism and soft-close rollouts, the tall cabinet offers ample storage with both shelving and rollout trays. The vanity is a Sonoma model in an evergreen finish with reeded detailing, constructed of birch wood and plywood. It is paired with the Emerstone Nirvana quartz countertop for a polished and unified look.
TILE AND STONE
Throughout the bathroom, the tile selections create a harmonious balance of texture and tone. The floor is finished in Snow Blind matte porcelain tile, while the shower walls are clad in the same tile in a polished finish for subtle contrast. The shower floor is surfaced with Kauai tumbled pebble marble mosaic, providing natural variation underfoot. The shower niche showcases the intricate Thassos Emerald water jet marble mosaic for visual interest. The vanity countertop, curb top, and wall cap are all fabricated from Emerstone Nirvana quartz, with Arctic White quartz used for the curb trim, ensuring every detail aligns with the clean and luxurious design vision.

