Jamison Kitchen Remodel
DESIGN CONCEPT
This remodel reimagines the kitchen as an open, welcoming hub where cooking, gathering, and connecting all happen seamlessly. The new design introduces balance, symmetry, and a rich visual palette that mixes deep blue cabinetry with soft white accents, warm brass finishes, and layered lighting. Every detail is selected to feel current yet timeless, creating a tailored, upscale atmosphere that still feels comfortable for everyday living.
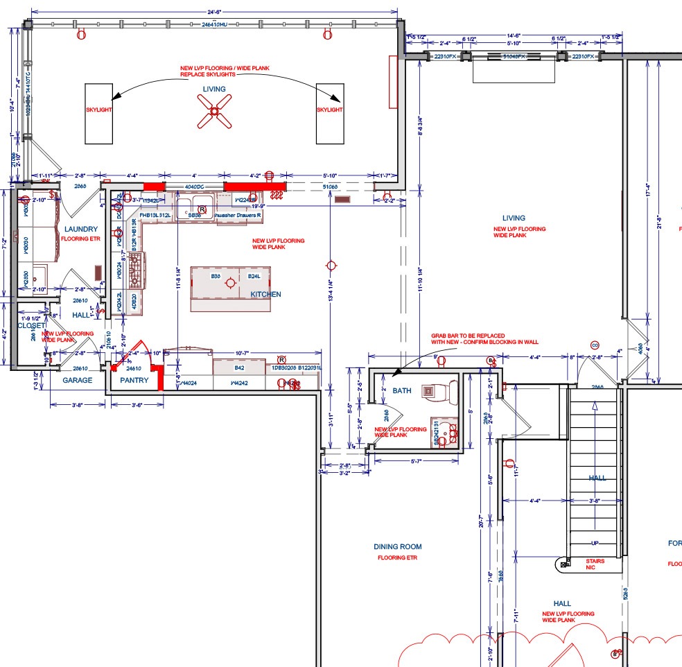
ORIGINAL FLOOR PLAN
Previously, the kitchen felt enclosed and disconnected from the surrounding rooms. Interior walls and dated finishes limited natural light and flow, and the layout lacked adequate counter space, functional storage, and meaningful landing zones. Heavy wood cabinetry, tile countertops, and traditional lighting contributed to a visually crowded environment that did not support the homeowners’ lifestyle or love of hosting.NEW FLOOR PLAN
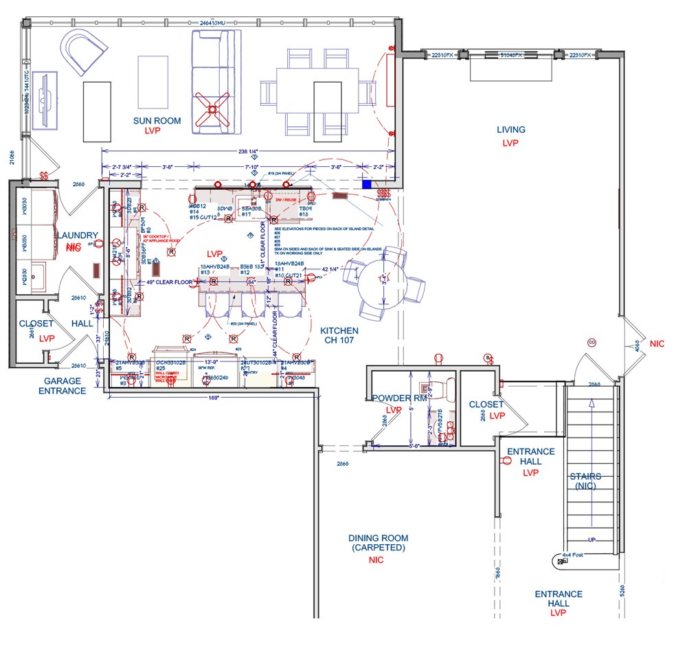
The new layout removes structural barriers to create an open concept connection between the kitchen, sunroom, dining area, and living room. A dual-island configuration supports multiple activities at once, offering dedicated zones for prep, seating, storage, and cleanup. Tall pantry cabinetry and full-height storage anchor the appliance wall, while a centered apron-front sink island acts as the focal point of the room. The expanded footprint and intentional traffic paths allow the space to function effortlessly for both quiet mornings at home and larger gatherings with family and friends.
FINISHES
The finishes throughout the new kitchen work together to create a cohesive and elevated environment. Wide-plank luxury vinyl flooring in a warm wood tone runs continuously through the surrounding spaces, establishing visual consistency and natural movement. Polished quartz countertops add a soft, cloud-veined pattern that introduces brightness and dimension. A glossy ceramic backsplash in a herringbone pattern brings texture and sophistication to the range wall. Warm brass hardware and fixtures layer in subtle contrast and give the space a refined sense of character.
CABINETS
The cabinetry features full-overlay doors in a flat-panel profile for a clean, transitional aesthetic. Deep blue cabinetry is used at the base and pantry walls to ground the space with color and confidence, while soft white upper cabinets around the cooking zone lighten the visual weight and reflect light. Storage is maximized through thoughtful internal organization, including roll-out trays, spice pull-outs, cutlery dividers, a double trash pull-out, and integrated tray storage. Two-piece crown molding, finished end panels, and decorative millwork at the seated island create a furniture-inspired feel that enhances the sense of craftsmanship.
TILE & STONE
The backsplash features a smooth, glossy ceramic tile installed in a full herringbone pattern that spans the entire range wall and continues into adjoining transitions for a seamless effect. The countertops are crafted in polished quartz with gentle veining, creating a durable and visually calming surface with eased edges and a clean negative reveal at the sink. Coordinating trim at openings and perimeters ensures every finish meets with intention, resulting in a final product that feels thoughtfully composed from every angle.

